Building A Custom Home…With your Contractor Husband

The Good the Bad the

UGLY the BEAUTY

Hello, fellow dreamweavers and home enthusiasts! Today, I'm thrilled to take you behind the scenes of a monumental journey – building our custom home with my incredibly talented husband, Joey, who also happens to be a skilled contractor and builder. Join me on this adventure as we weave dreams into bricks and mortar, turning our vision into a place we proudly call home. Not only is it a new custom build for us but it is also a brand new city. A place not too far from our OG home of Baton Rouge, LA but still away from our family and friends and what we knew as “normal”. Mandeville, LA, and all its beauty stole our hearts and never really let go, once we found our DREAM location on the Mandeville Lakefront we took as huge leap of faith and made the move with our two sons Nixon (4) and Reynolds (2).

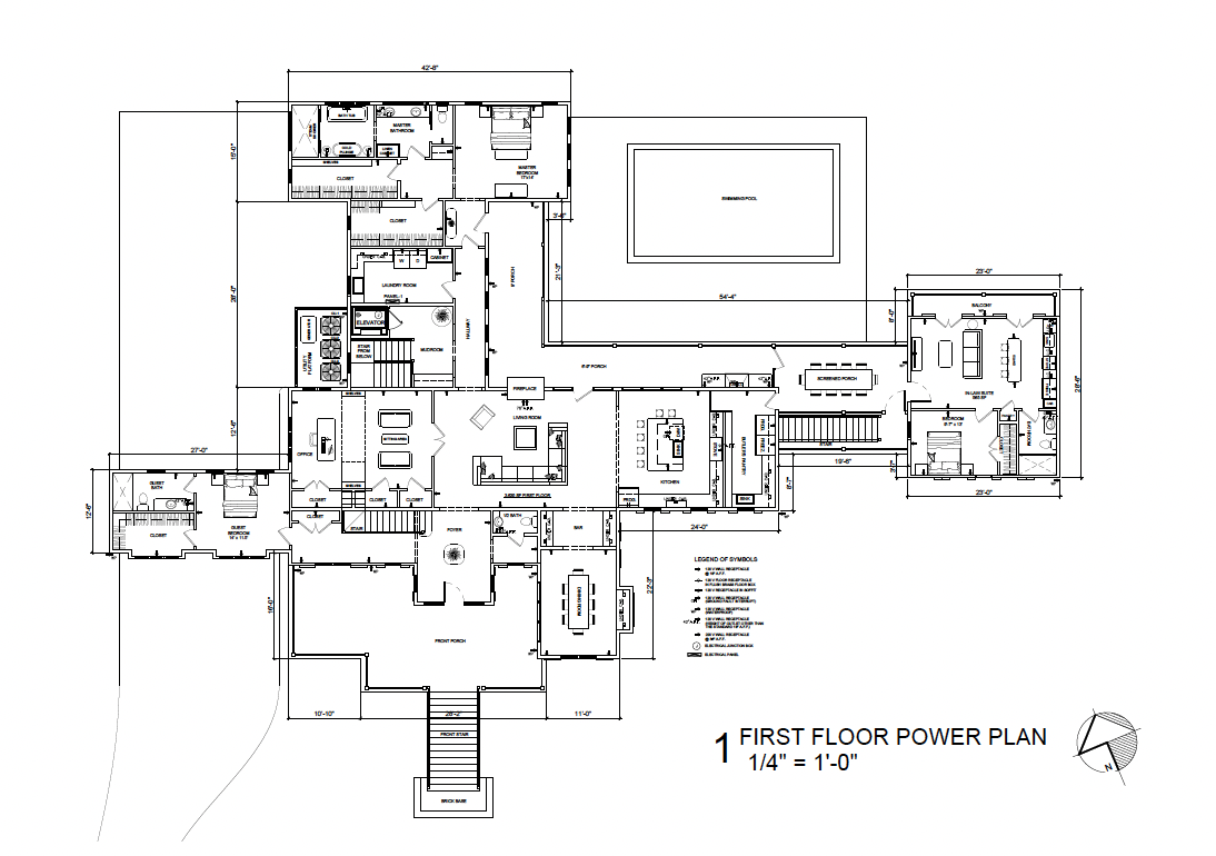
Dreaming Up the Blueprint Every great journey begins with a dream, and ours started with envisioning the perfect home. We sat down with sketches, mood boards, and endless cups of coffee, turning our aspirations into a tangible blueprint. As an aspiring lifestyle blogger and mom, I couldn't resist documenting the creative process – from selecting the architectural style to deciding on the number of rooms that would become the backdrop of our everyday lives. We took our time picking out every detail of this layout as it will be our forever home. COUNTLESS edits later we came up with what we believe will set us up for a lifetime of growth and seasons. 4 bedrooms, 1 library/office, bar, DREAMY butler pantry, and a separate mother-in-law suite to accommodate our soon-to-be visitors.

To say all this without crediting our AMAZING architects located in the heart of historic Mandeville, KVS Architecture would be unrealistic. We have spent countless hours, 100s of emails, and phone calls with our trusted architect, Kelsea, creating our perfect spaces. I will forever be grateful for her talent and eye for design through this process.

Downstairs Floorplan

From Pixels to Reality With the blueprint in hand, we entrusted my husband's expertise to turn our digital dreams into a physical reality. The groundbreaking moment marks the commencement of torture but there are still so many decisions to be made and trust me when I say making these decisions upfront is always best… well that’s what my contractor husband keeps telling me. So maybe it’s a stall tactic… JK However I will keep you updated along the way of this process and hopefully something i share is helpful for you!

Navigating Design Decisions One of the perks of having a builder hubby? Access to his wealth of knowledge on materials, textures, and design trends. Together, we are navigating the world of design decisions – from the color palette that evokes warmth to the flooring that whispers underfoot. Every choice felt like a reflection of our personalities, turning our house into a curated haven that echoes our unique style. Speaking of style what is our style? We are building on the Mandeville Lakefront so we are trying to curate a modern rustic coastal vibe.

Balancing Work and Home Building a custom home while balancing work and personal life presented its own set of challenges. As an aspiring lifestyle blogger, the owner of a growing roofing and construction company, and the mom of 2 toddlers I chronicled the juggling act of managing deadlines, content creation, being a mom, cleaning up after 2 large dogs, managing a sales team, and home-related decisions. It isn’t always smooth sailing, but the journey is teaching us valuable lessons in communication, compromise, and the art of finding balance.

Home is Where the Heart Builds Our Journey and it is just beginning. Building a custom home with a contractor husband adds a layer of intimacy to the process, making every decision a joint venture filled with love and creativity. As an aspiring lifestyle blogger, I cherish the opportunity to share this chapter of our lives, and I hope our story inspires others to embark on their home-building adventures. After all, home is not just a place; it's a canvas where dreams are built and memories are painted.

InthekNoto

Previous
Previous

Sizzle and Spice: Elevating Dinner with Spicy Rigatoni Pasta and Garlic Herb Ricotta Topping

Next
Next

Sizzling Success: Unveiling the Secrets of My Famous Chili Recipe